| штат: | |
|---|---|
Описание продукта
Вещательная антенна XB-3 для морской системы оповещения
Введение продукта
Морская радиовещательная антенна является важнейшим компонентом современных морских систем связи и навигации, предназначенным для обеспечения надежной передачи и приема сигналов на большие расстояния в диапазонах частот ОВЧ и СЧ/ВЧ. Эта надежная антенна, разработанная для сложных морских условий, обеспечивает бесперебойную связь для основных операций судна, включая цифровой избирательный вызов (DSC), голосовую связь, оповещения о погоде и интеграцию с требованиями Глобальной морской системы бедствия и безопасности (GMDSS).
Изготовленная из высококачественных коррозионно-стойких материалов, таких как морская нержавеющая сталь и устойчивые к ультрафиолетовому излучению композиты, антенна выдерживает суровое воздействие соленой воды, экстремальные погодные условия и постоянную вибрацию. Его оптимизированная диаграмма направленности обеспечивает стабильное покрытие сигнала даже в бурном море или отдаленных океанических регионах, а конструкция с низким уровнем шума и высоким коэффициентом усиления обеспечивает максимальную четкость и дальность связи. Антенна совместима со стандартными морскими трансиверами и может быть легко установлена на мачтах, радарах или других надземных судовых конструкциях благодаря универсальным вариантам монтажа.
Эта антенна идеально подходит для коммерческих судов, рыболовных судов, пассажирских паромов и морских платформ. Она повышает эксплуатационную безопасность, соответствие нормативным требованиям и координацию действий экипажа. Будь то рутинная связь или экстренное радиовещание, он обеспечивает стабильную производительность там, где надежность имеет наибольшее значение.
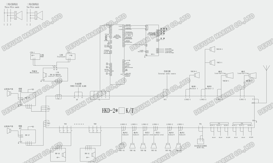
HKD-2*□K/2*□T Морская система оповещения

Схема подключения морской системы оповещения HKD-2*□K/2*□T

Морская система оповещения HKD-D

Схема подключения морской системы оповещения HKD-D
